
哈喽~各位想自建房的宝子们!今天给大家带来哲东自建房设计143期精品案例,专门解决兄弟合建的痛点——既保留各自独立空间,又能共享庭院温情,占地梯形也能完美利用,现代简约风颜值拉满,实用性直接拉爆!
先给大家划重点 这是一套专为兄弟双拼打造的自建房,精准匹配梯形用地,3层布局+5-6间卧室,顶层露台+共享后院,外立面干净高级,看完直接抄作业不踩坑!

业主核心需求(精准戳中兄弟合建痛点)
占地条件:宽16.2米,梯形用地,前双拼户型,后庭院兄弟两家共享
出入口:南侧为主要出入口,北侧预留梯形院子(重点放柴火灶)
楼层与房间:3层设计,共5-6间卧室,顶层必须有露台
功能分区:首层需包含客厅、厨房、餐厅+1间卧室;二层≥2间卧室;三层≥2间卧室
外立面:现代简约风格,要求简单、干净、有质感
设计亮点解析(每一处都藏着巧思)
结合梯形用地的特殊性,兼顾实用性与颜值,每一处设计都贴合兄弟合建的需求,既独立又共生~
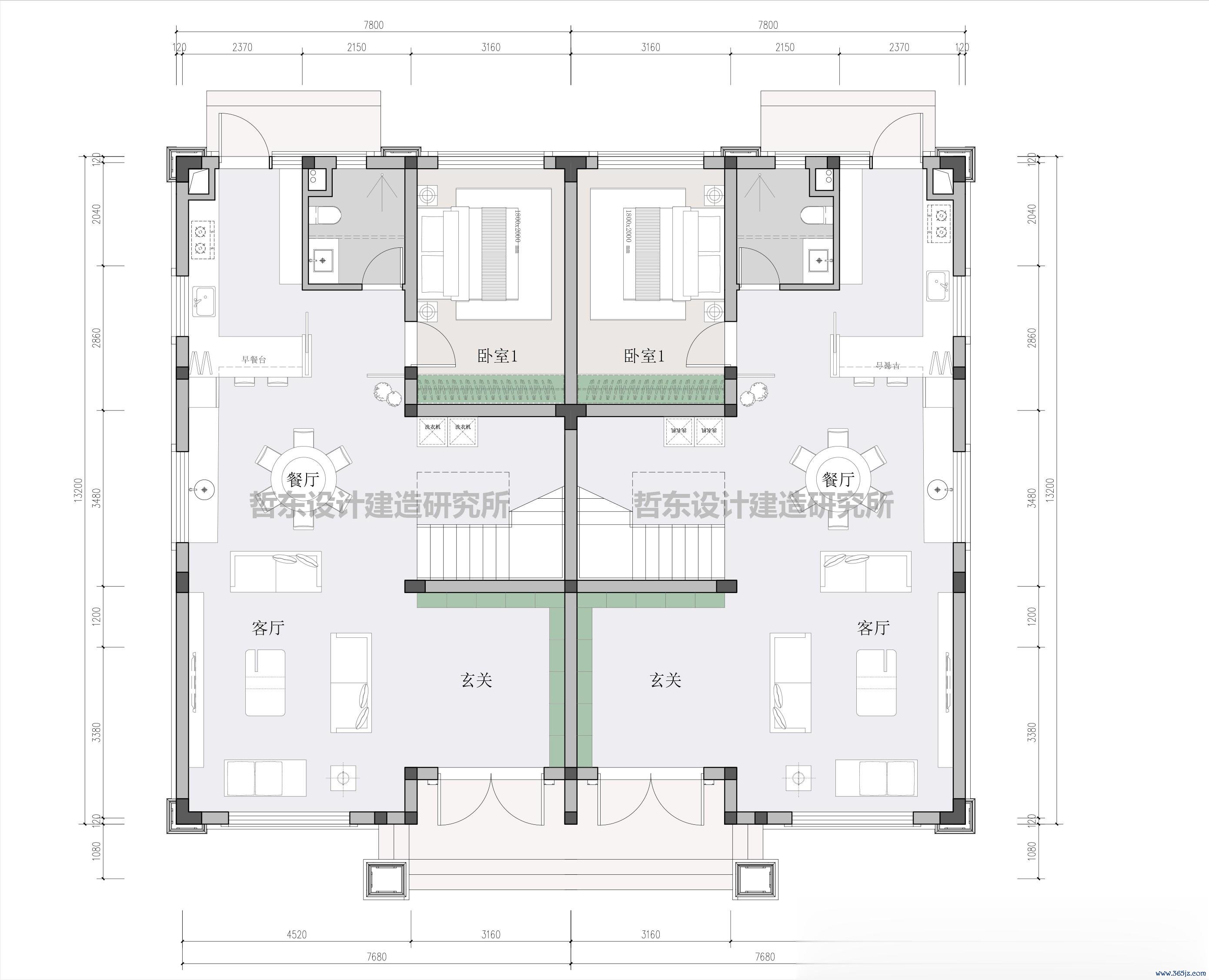
✨ 首层设计:大气通透,兼顾日常起居
入口居中设计,搭配门廊造型,一进门就自带大气感,告别普通自建房的局促感。进门即是玄关,过渡自然,紧接着是客餐厅一体化布局,打通空间壁垒,视觉上更开阔,家人聚会、接待客人都不拥挤。同时首层预留1间卧室,方便老人居住,不用上下楼梯,兼顾便捷性;厨房紧邻餐厅,动线合理,日常做饭、用餐更省心。

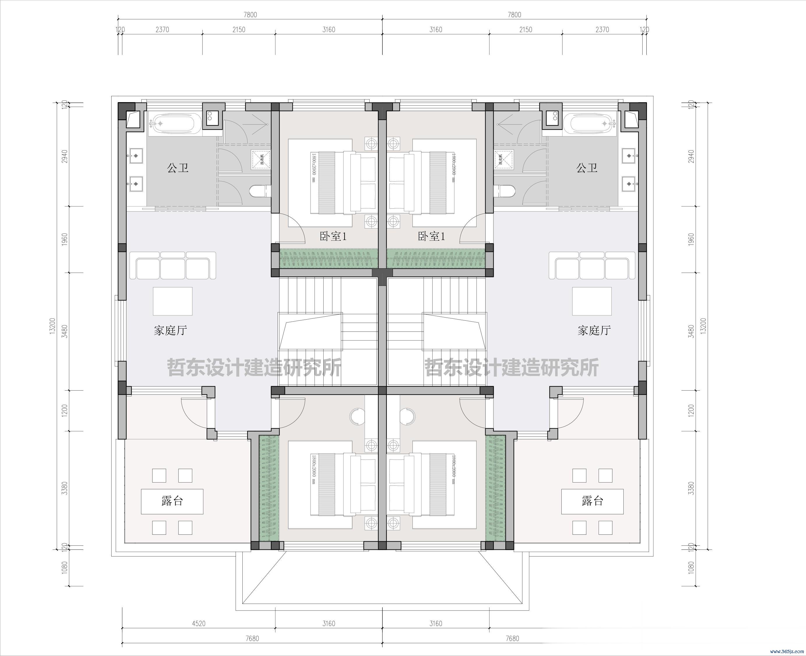
✨ 二层设计:动线清晰,卧室尺度拉满
采用中间楼梯设计,最大化利用空间,避免浪费。二楼南侧规划两间大尺度卧室,采光充足、视野开阔,自带舒适居住体验;北侧设置次卧+独立卫生间+书房,满足家人休息、办公、洗漱的多重需求,中间用家庭厅串联各个空间,动线流畅,互不干扰,兄弟两家各自居住也能保持私密性。

✨ 三层设计:灵活适配,解锁舒适生活
重点满足业主核心需求!南侧一间卧室调整为露台,不仅丰富了外立面造型,还能打造空中花园、休闲区,喝茶、观景、晾晒一站式搞定;北侧根据业主要求,设计成一间带洗衣机、浴缸的5件套大卫生间,冬天泡个热水澡,彻底卸下一天疲惫,细节拉满,舒适度直接升级。

✨ 后院设计:共享不拥挤,烟火气十足
考虑到院子空间较小,采用“合二为一”的设计,兄弟两家共享庭院,互不打扰又能增进感情。庭院内预留专门区域放置柴火灶,满足喜欢柴火饭的业主需求;树木花草靠边种植,中间留出开阔空间,方便活动、晾晒;同时为两家分别预留洗手池、水井、洗衣区域,实用性拉满,兼顾烟火气与整洁度。

✨ 外立面设计:简约高级,耐看又耐用
采用经典三段式设计语言,融合日式的简约空灵与欧式的精致质感,整体风格干净利落,不繁琐、不浮夸,却越看越有味道,兼具耐久性与传承感。搭配圆形窗设计,打破单调,丰富外立面造型,既大气稳重,又不失活泼感,不管是远看还是近看,都极具设计感,在村里绝对是辨识度拉满的存在。

博主总结
这套兄弟双拼别墅,最核心的亮点就是“兼顾”——兼顾梯形用地的利用、兼顾兄弟两家的独立性与共享性、兼顾颜值与实用性。没有复杂的设计,却每一处都贴合日常居住需求,现代简约的外立面,不管是年轻人还是长辈都喜欢,3层布局+露台+共享庭院,完全满足兄弟合建的所有期待!
关注我,每周分享不同风格自建房设计案例,不管是双拼、独栋,还是各种特殊用地,都能找到适合你的设计灵感,自建房不踩坑,轻松拥有梦中情房❤️
#自建房设计 #兄弟双拼别墅 #现代风别墅 #梯形用地建房 #农村自建房 #别墅设计案例
亿策略提示:文章来自网络,不代表本站观点。